Domov / Katalóg domov / Poschodové domy / Ingrid 136

1 / 5
136 m²
Ingrid 136
poschodový dom
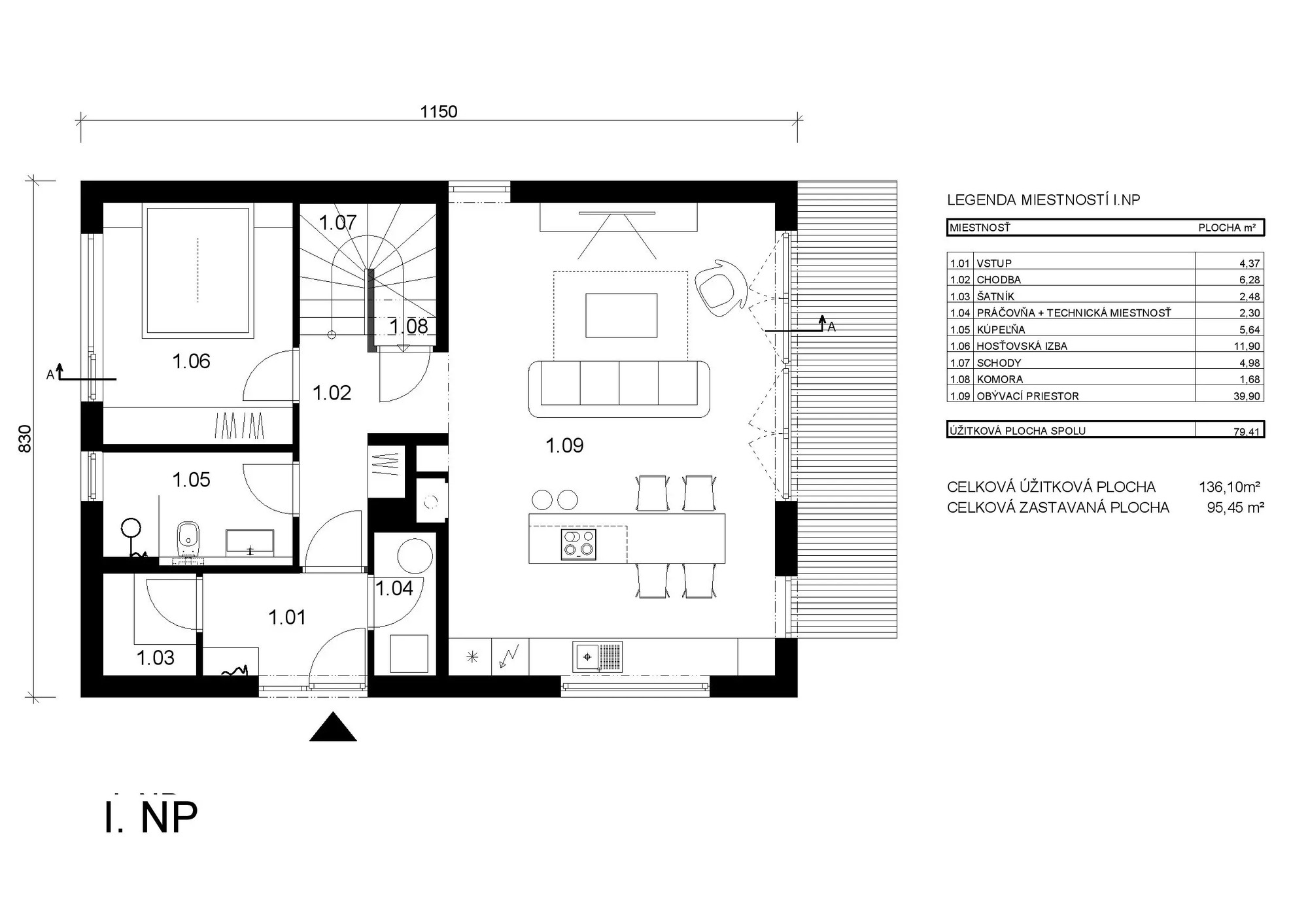
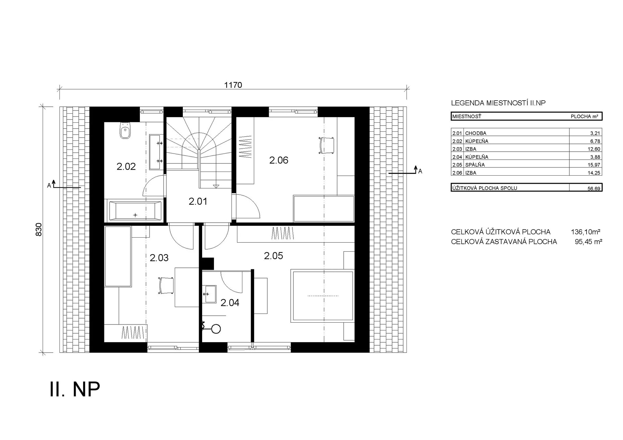
Montovaný poschodový dom INGRID 136 je ideálnym riešením pre rodiny, ktoré potrebujú viac priestoru na dvoch podlažiach. Na prízemí sa nachádza obývacia izba prepojená s kuchyňou a jedálňou, samostatné WC a technická miestnosť. Na poschodí sú umiestnené spálne so šatníkom a kúpeľňou, čo zaručuje maximálne súkromie. Celková plocha 136 m² poskytuje dostatok priestoru pre pohodlné rodinné bývanie. Dom je navrhnutý tak, aby maximálne využíval každý meter štvorcový.
Cenová ponuka – Ingrid 136
| Hrubá stavba | 130 706,41 € s DPH |
| Holodom | 182 205,82 € s DPH |
| Dom na kľúč | 211 830,62 € s DPH |
| Základová doska | 10 800,00 € s DPH |
Ku každému zákazníkovi pristupujeme individuálne. To znamená, že typový dom vám upravíme podľa vašich predstáv, navrhneme individuálny projekt, prípadne prepracujeme váš projekt na náš stavebný systém.
