Domov / Katalóg domov / Tiny house / Romana 62

62 m²
Romana 62
Tiny house
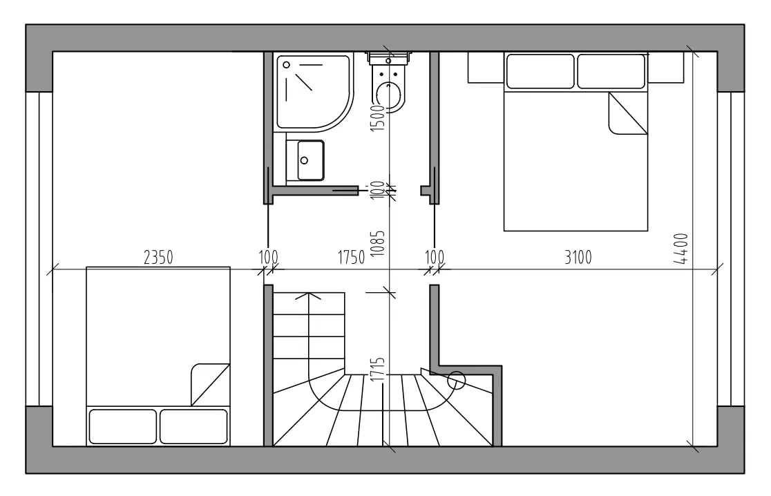
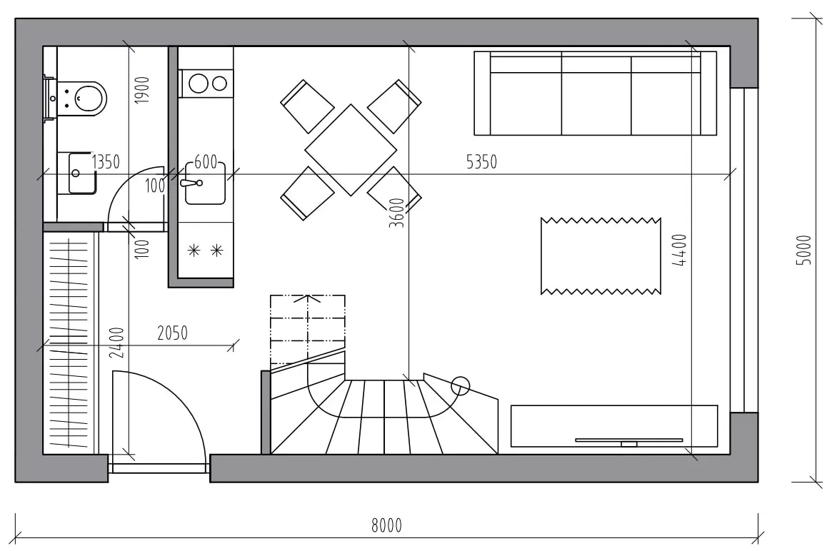
Vzorový montovaný drevodom ROMANA 62 je navrhnutý tak, aby v ňom používateľ našiel všetko, čo potrebuje. Na prízemí sa nachádza spoločná kuchyňa prepojená s obývacou izbou, ktoré ponúkajú možnosť na príjemné strávenie chvíľ s rodinou či priateľmi. Súčasťou tohto priestoru je aj toaleta s umývadlom. V pokojovej časti na poschodí sa nachádzajú dve izby, ktoré majú k dispozícii kúpeľňu s WC. Obytné izby sú dostatočne priestranné na pohodlné zariadenie. Celý dom pôsobí kompaktne a zároveň priestranne. MONTISTAV realizuje tiny houses po celom Slovensku.
Cenová ponuka – Romana 62
| Hrubá stavba | 75 549,4 € s DPH |
| Holodom | 101 714,07 € s DPH |
| Dom na kľúč | 114 526,49 € s DPH |
| Základová doska | 4 320 € s DPH |
Ku každému zákazníkovi pristupujeme individuálne. To znamená, že typový dom vám upravíme podľa vašich predstáv, navrhneme individuálny projekt, prípadne prepracujeme váš projekt na náš stavebný systém.
